Project Description
Projeto: Construção de Sobrado Residencial
Autora do Projeto: Arq. Leilane Gonçalves
Local: Marília/SP
Área: 260m²
Ano: 2020









CONCEITO:
Trata-se de uma construção de sobrado residencial na cidade de Marília/SP.
Aqui, a principal necessidade da família é a quantidade de dormitórios, visto que anteriormente sua residência não atendia a quantidade necessária.
Portanto, aparecem um total de quatro suítes no projeto. Sendo três no pavimento térreo e um no pavimento superior.
Além disso, a área de lazer é o segundo local mais desejado, mesmo a residência possuindo uma área grande de cozinha, o lazer também segue amplo para acomodar toda a família e amigos que adoram se reunir tanto para jantares e almoços mais tranquilos, quanto festas e comemorações maiores.
Por fim, foi escolhido o estilo rústico representado através da variedade de tipos de concreto aparente, porém com doses de elementos mais modernos, como por exemplo o guarda corpo e corrimão em vidro na parte interna da casa e o brise para absorver a intensidade do calor do sol na fachada com as opções de mante-lo aberto ou fechado, valorizando todo o prédio.
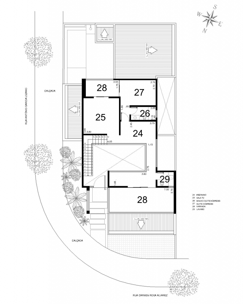
PLANTA TÉRREO E SUPERIOR:


DESCRIÇÃO TÉCNICA:
Ainda que a quantidade de dormitórios seja o objetivo principal do projeto, semelhantemente é a importância das área de convívio entre família e amigos.
Por isso o mezanino se tornou uma peça importante, pois concentramos nele sala de tv, escritório e espaços de leitura e descanso. Ao mesmo tempo que os ambientes estão separados, possuem a visibilidade a ponto de manter as pessoas juntas. Além disso possuí a vista para sala de jantar e até mesmo para a área de lazer.
Com o propósito de manter o estilo rústico, usamos o cimento aparente na escada, ao mesmo tempo, possuí a modernidade da escada vasada ou flutuante. Junto o corrimão de vidro com estrutura em madeira e ferro na cor preta.
Elementos vasados e brises foram adotados para trazer mais conforto térmico para o ambiente, permitindo a iluminação entrar porém barrando a luz intensa do sol.
